AUF BERG I

AUF BERG I

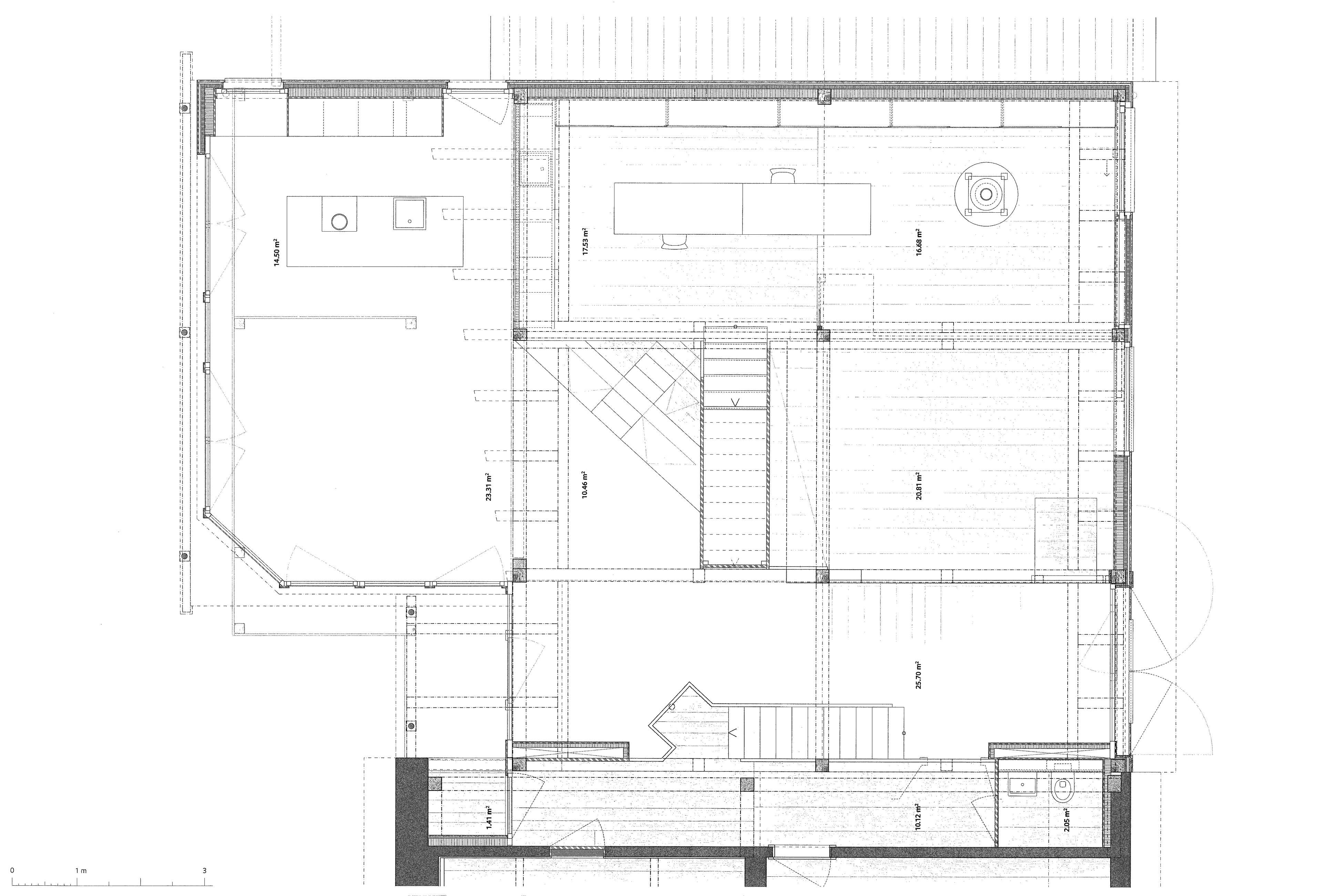
Erdgeschoss

Erdgeschoss

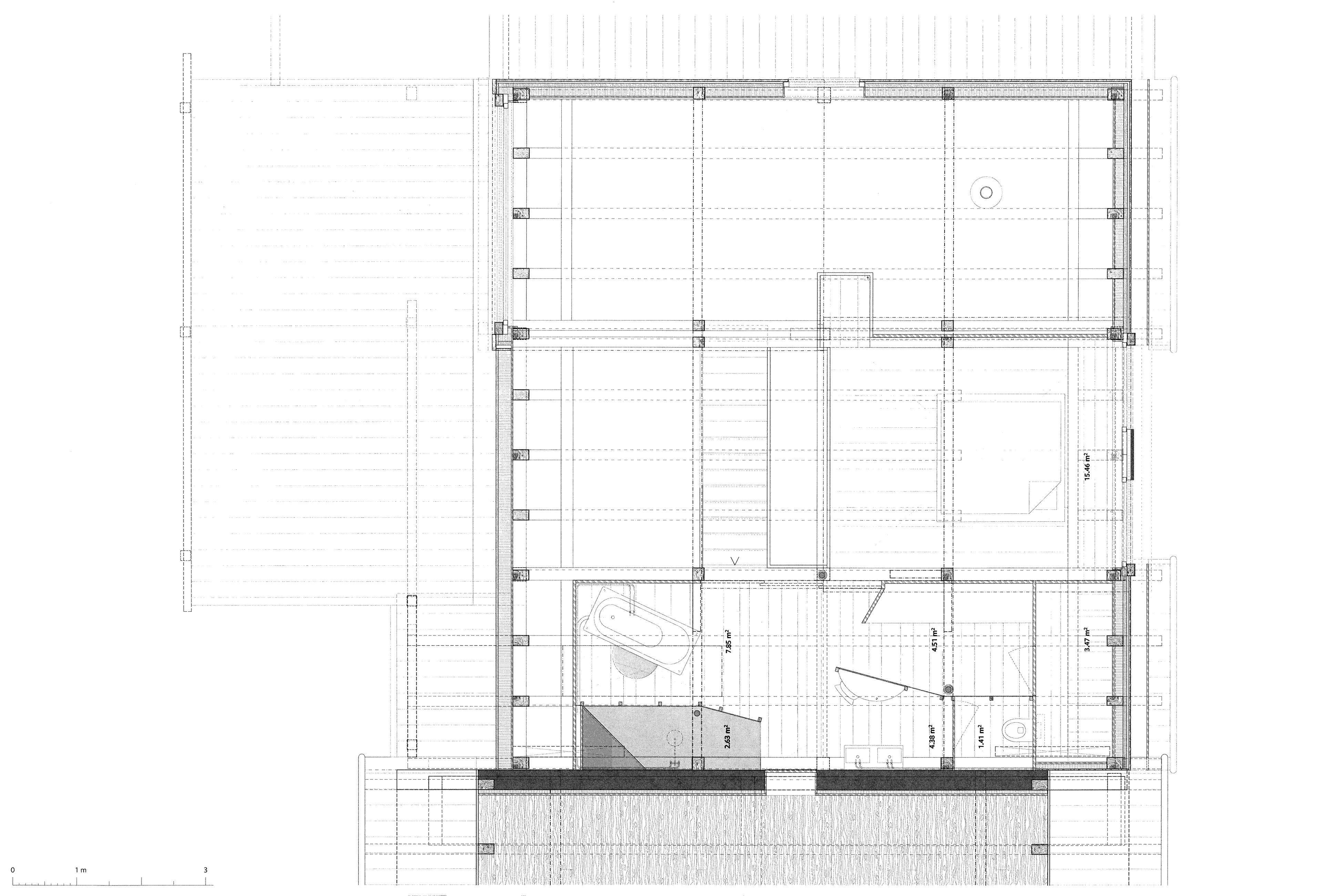
Dachebene

Dachebene

Querschnitt

Querschnitt

Hof

Hof

Eingangsfassade

Eingangsfassade

Zwischenebene

Zwischenebene

Querschnitt

Querschnitt

Situationsmodell

Situationsmodell

Auf Berg I
Ausbau Tenne in Mauren (FL)
Planung: 2016–2018
Mitarbeit: Benoît Perrier, cand. Arch EPFL