GREIFENSEE

GREIFENSEE

Gebäudestruktur

Gebäudestruktur

Erdgeschoss

Erdgeschoss

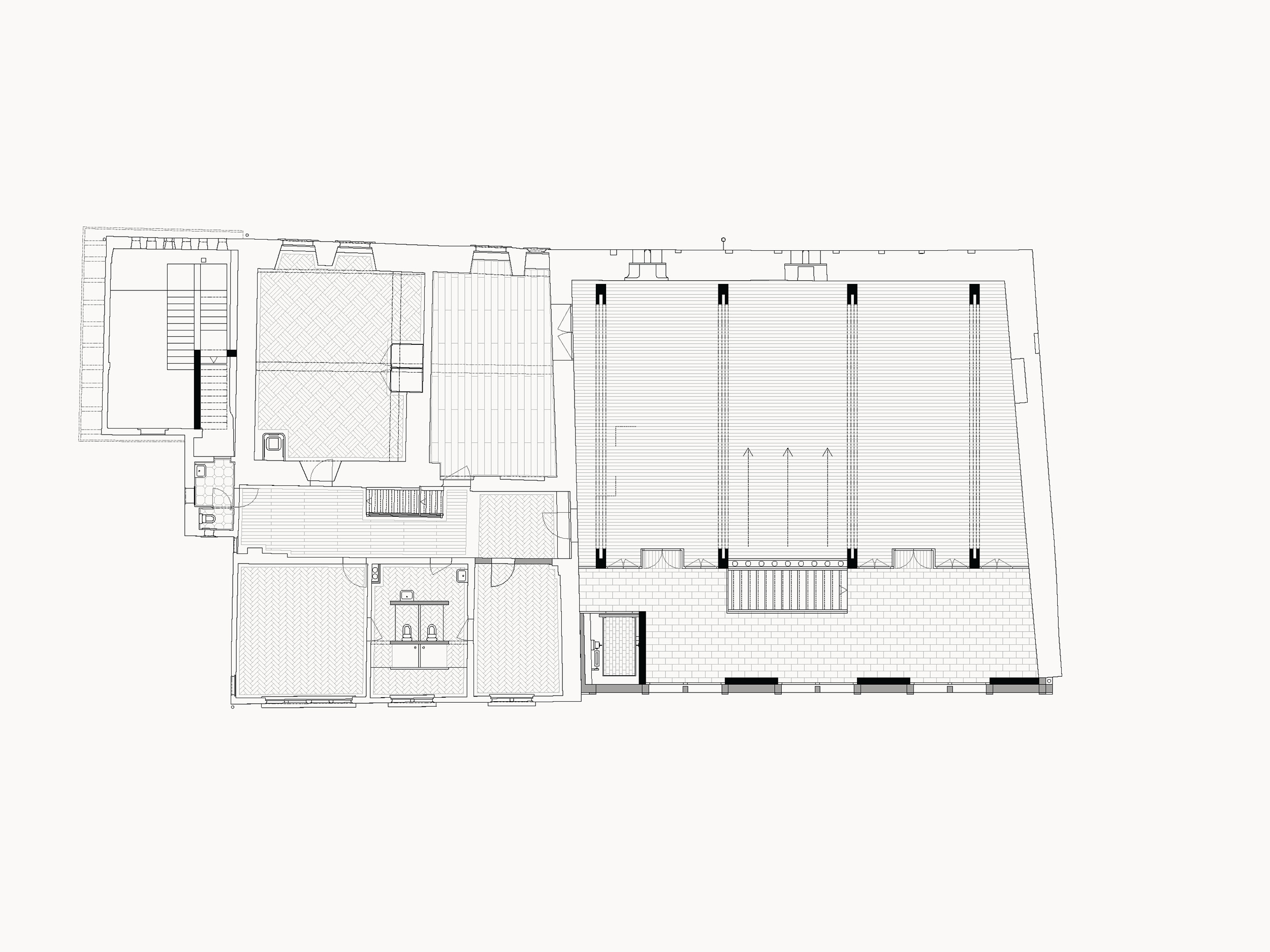
Obergeschoss

Obergeschoss

Dachgeschoss

Dachgeschoss

Untergeschoss

Untergeschoss

Längsschnitt

Längsschnitt

Kräfteplan

Kräfteplan

Konstruktionsschnitt

Konstruktionsschnitt

Greifensee
Konzertsaal und Bistro Landenberghaus in Greifensee ZH
Projektwettbewerb (offen): Sommer 2013
Anerkennung
Bauingenieur: Berger + Schmidlin, Zürich
Akustiker: Strauss Elektroakustik GmbH, Bern
Zimmermann: Zimmerermeister Hubert Diem, Dornbirn AT
Modellfotografie: Johanna Muther